

| 所 在 | 中央区日本橋小伝馬町 | 交 通 | JR総武快速線「馬喰町」駅徒歩3分 都営新宿線「馬喰横山」駅徒歩3分 都営浅草線「東日本橋」駅徒歩3分 日比谷線「小伝馬町」駅徒歩4分 |
|---|---|
| 構 造 | 鉄筋コンクリート造5階建 |
| 用 途 | 店舗・事務所 |
|---|---|
| 面 積 | 20.7平米(6.26坪) |
| 賃 料 | -入居中- |
| 管理費 | - |
| 敷金/礼金 | - |
| 用 途 | 店舗・事務所 |
|---|---|
| 面 積 | 27.0平米(8.16坪) |
| 賃 料 | -入居中- |
| 管理費 | - |
| 敷金/礼金 | - |
| 用 途 | 住居 |
|---|---|
| 面 積 | 27.5平米(8.31坪) |
| 賃 料 | -入居中- |
| 管理費 | - |
| 敷金/礼金 | - |

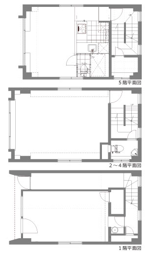
東エリアのコアとなっているアガタ竹澤ビルから程近い場所に建つ5階建てのビル。昨年まで大阪の老舗が自社ビルとして使っていましたが、まるごと改装して小さなコンプレックスビルに生まれ変わりました。
1・2階は店舗または事務所、3・4階は事務所、5階は住居になっています。基本的には各階ごとの募集ですが、組み合わせて使えば住居兼事務所とか、住居兼店舗とかいろいろな使い方も可能です。
1階をギャラリーとかショールーム的に使って2階や3階を事務所にするとか、上下を組み合わせて使うのが楽しそうです。賑やかな場所よりも少し落ち着いた場所を探している人向きな物件だと思います。
5階は住居にコンバージョン。普通に住むのもアリだと思いますが、こちらも下の階と組み合わせて使うのもオススメです。事務所とセットで使えば通勤時間0分で住居と事務所を構えるなんていうこともできちゃいます。
いろいろと変化を続けるこの界隈ですが、こんな物件があるのも東エリアならでは。普通に交通が便利な場所で、手頃なサイズで手頃な賃料なので、少人数の事務所を構えるのにもいいと思います。