

| 所 在 | 千代田区東神田 |
|---|---|
| 土地面積 | 18.18平米 |
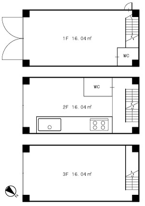
| 建物面積 | 1階16.04平米 2階16.04平米 3階16.04平米 合計48.12平米 |
| 構造階数 | 鉄筋コンクリート造陸屋根3階建 |
| 築年月 | 昭和39年 |
| 交 通 | JR総武快速線「馬喰町」徒歩3分 都営新宿線「馬喰横山」徒歩3分 日比谷線「小伝馬町」徒歩9分 |
| 価 格 | -成約済- |

千代田区東神田。
東神田や馬喰町、浅草橋といった東エリアにはアーティストやデザイナーなど感度の高い人達が集まる場所として、劇的に変わりつつあります。
こちらの物件は、現代アートのギャラリーやジュエリーショップのアトリエなどが入居する東エリアの象徴でもあるアガタ竹澤ビルのすぐ裏にあります。
昭和39年築というこの建物、歴史を感じさせる特徴的な外観や、なんとも小さな面積、急勾配ながらも美しい階段など建物自体がとても魅力的。
さらに、千代田区という住所でありながら、2,500万円で買えるという価格もまた強烈です。
このエリアだからこそ発掘されたこの物件、適度に手を加えながら上手に使って頂ける方を随時募集しています。
(本物件は、東京R不動産にて募集を行っています。)
※当社は宅地建物取引業者ではありません。成約時には、当社提携の宅地建物取引業者が仲介業務を行いますので、規定の仲介手数料を申し受けます。