

| 所 在 | 台東区浅草橋 | 交 通 | JR総武線「浅草橋」徒歩3分 JR山手線・総武線・日比谷線 「秋葉原」徒歩7分 |
|---|---|
| 構 造 | 鉄筋コンクリート造5階建 |
| 用 途 | 住宅・SOHO |
|---|---|
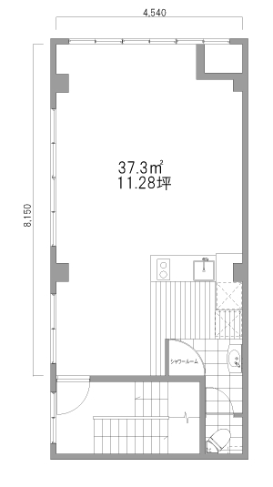
| 面 積 | 37.3平米(11.28坪) |
| 賃 料 | -入居中- |
| 管理費 | - |
| 敷金/礼金 | 1ヶ月/1ヶ月 |

台東区浅草橋。
JR総武線「秋葉原」〜「浅草橋」線路脇に建つ昭和37年築、鉄筋コンクリート造5階建ビルの2階から5階をPIT STOCKが借り上げ、リノベーション・コンバージョンした物件です。
2・3階はリノベーションしたオフィス、4・5階は住宅・SOHOにコンバージョンした賃貸物件です。
すべてきれいに作り直してしまうのではなく、築約50年という歴史を感じさせる鉄のサッシュや床のフローリングを残すことで、アンティークな雰囲気に仕上がっています。
日本橋・馬喰町・浅草橋を中心とした東エリアはアーティストやデザイナー、現代アートのギャラリーなど感度の高い人達が集まってきているエリアです。
本物件は、「東京R不動産」に募集を依頼し、カメラマン、ファッションデザイナー、広告デザイナーといったクリエイティブな方々が入居頂されています。
事務所プランの2・3階はコチラ