


| 所 在 | 千代田区岩本町 | 交 通 | JR総武快速線「馬喰町」駅徒歩4分 都営新宿線「馬喰横山」駅徒歩4分 日比谷線「小伝馬町」駅徒歩5分 都営浅草線「東日本橋」駅徒歩7分 日比谷線「秋葉原」駅 徒歩8分 |
|---|---|
| 構 造 | 鉄骨造5階建 |
| 用 途 | 住居・事務所 |
|---|---|
| 面 積 | 67.2平米(20.3坪) |
| 賃 料 | -入居中- |
| 管理費 | - |
| 敷金/礼金 | - |
| 用 途 | 住居・事務所 |
|---|---|
| 面 積 | 51.3平米(15.5坪) |
| 賃 料 | -入居中- |
| 管理費 | - |
| 敷金/礼金 | - |
| 用 途 | 事務所 |
|---|---|
| 面 積 | 51.9平米(15.6坪) |
| 賃 料 | -入居中- |
| 管理費 | - |
| 敷金/礼金 | - |
| 用 途 | 店舗・事務所 |
|---|---|
| 面 積 | 87.89平米(26.58坪) |
| 賃 料 | -入居中- |
| 管理費 | - |
| 敷金/礼金 | - |

千代田区岩本町にある元製薬工場をまるごとリノベーションした物件です。徒歩5分以内で3路線使えて、秋葉原や神田も徒歩圏で便利な場所にあります。すぐ近くにワンドロップカフェやアガタ竹澤ビルもありイースト東京のコアエリアとも言える場所で、東エリアで新たな拠点を構えたい方にオススメの物件だと思います。
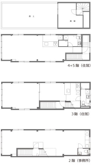
1階は店舗、2階は事務所、3階と4階はそれぞれ住居になっています。最上階の4階には5階の倉庫と屋上がもれなく付いてきます。各フロア約50平米(15坪)なので、事務所であれば5人ぐらい、住居であれば、単身〜2人といったイメージだと思います。ちなみに。
1階は飲食店が2013年10月にオープン予定でかなり雰囲気が変わると思います。
前面道路が広めなわりに交通量が少なめなので、都心部にもかかわらず意外と静かで落着く感じですし、抜けがあって明るく気持ちの良い雰囲気です。2階は道路の街路樹が目の前なので、借景のようでこれも良い感じです。
都心部に住みたいけどできれば静かな場所で、小さなワンルームではなく、大きめな部屋を贅沢に使いたい、大きなテラスがあって、ちょっとしたパーティもしたい、そんな贅沢な住まいを探している方向けの物件だと思います。